KYN61-40.5 orta gerilim anahtarının performansını, güvenli çalışma yöntemlerini ve teknik parametrelerini sunacağız.
Model ve anlamı
K Y N 61 - 40.5 / □ - □
Kısa devre kırma akımı (kA:)
Rated Current (A:)
- Rated Voltage (kV) - Rated Voltage (kV)
Tasarım Seri Numarası
İçerideki iç mekanlar
Removal type (Kaldırma türü)
Metal zırhı
Çevresel koşulları kullanın
Ortam sıcaklığının üst sınırı 40 ° C'dir ve 24 saat içinde ölçülen ortalama değer 35 ° C'yi geçmez.
A:lt sınır -15 °C:
Yükseklik: Deniz seviyesinden 1000 metreden fazla değil;
Göreceli nem: günlük ortalama% 95'ten fazla değil, aylık ortalama% 90'dan fazla değil;
Deprem yoğunluğu: 8 dereceden fazla değil;
Su buharı basıncı: günlük ortalama 2.2kPa'yı geçmez ve aylık ortalama% 90'ı geçmez.
Teknik parametreler
Vakum anahtarının temel teknik parametreleri
Seri numarası | Proje | boyutları | parameter |
1 | Nominal Voltaj | kV | 40.5 |
2 | Lianchang | A: | 12501600 2000 |
3 | Rated frekansı | Hz | 50 |
4 | Kısa süreli Dayanıklı A:kım | kA: | 20 25 31.5 |
5 | Rated peak resist current | kA: | 50 63 80 |
6 | Güç frekansı Stand Voltage | kV | 95/1 dakika |
7 | Derecelendirilmiş yıldırım şoku gerilimi dayanır | kV | 185 |
8 | Kısa devre süresi kısa devre süresi | S | 4 |
9 | Koruma seviyesi | IP3X |
Vakum devre kesicisinin ana teknik parametreleri
Seri numarası | Proje | - Weaving pozisyonu | parameter |
1 | Nominal Voltaj | kV | 40.5 |
2 | Rated frekansı | Hz | 50 |
3 | Güç frekansı Stand Voltage | kV | 95 / lmin |
4 | Derecelendirilmiş yıldırım şoku gerilimi dayanır | kV | 185 |
5 | Rated Current | A: | 12501600 2000 |
6 | Kısa süreli Dayanıklı A:kım | kA: | 20 25 31.5 |
7 | Kısa devre kırma akımı | KA: | 20 25 31.5 |
8 | Rated peak resist current | kA: | 50 63 80 |
9 | Kısa devre süresi kısa devre süresi | ms | 4 |
10 | A:çılış saati | ms | 30 S 1 - W 60 |
11 | Hehehe zaman | ms | 50 & t - W] 00 |
12 | 88 Sabit bir kısa devreye akımın kesildiği zaman sayısı | Times | 20 |
13 | Mekanik Yaşam | Times | 10000 |
Bahar işletim makinelerinin ana teknik parametreleri
name | Birim | Numerik Değer | |
Nominal çalışma voltajı | Split Coil | V | DC220/110 A:C220/110 A:C220/110 |
Kapatma coils | |||
Rated Operating Current (Operasyon akımı) | Split Coil | A: | O.96 (22OV) 1.O5I11OV) |
Kapatma coils | |||
Enerji Depolama Motor gücü | - W | 230 | |
Enerji Depolama Motor Nominal Voltaj | V | DC220/110 A:C220/110 A:C220/110 | |
Enerji depolama süresi | S | w 12 |
Switchgear'ın yapısal özellikleri
A:nahtar, zırhlı metal kaplı anahtar için GB3906-1991 ve IEC298 standartlarına göre tasarlanmıştır. Bütün iki parçadan oluşur: dolap ve çıkarılabilir parça (el arabası). Kabine yapısı prefabrik edilmiş ve bir araya cıvatalanmıştır. A:nahtar cihazının iç kısmı, bir devre kesici odasına, ana busbar odasına, bir kablo odasına ve metal bölme ile bir röle enstrüman odasına ayrılmıştır. Muhafazun koruma seviyesi IP3X'e ulaşır, her bölme arasındaki koruma seviyesi IP2X'dir ve tüm metal yapısal parçalar güvenilir bir şekilde topraklanmıştır ve ana devre sisteminin her bölmesi bağımsız bir egzoz basıncı salınma kanalı vardır.
1. Enclosure ve partition
A:nahtar teçhizatının kabuğu ve bölümü, CNC makine aletleri tarafından işlentikten ve bükildikten sonra soğuk hasılatılmış çelik plakalarla birlikte cıvatalar. Bu nedenle, montajlı anahtar aygıtı yapısal boyutların teklifinin sağlanabilir. A:nahtar, bir devre kesici odasına, ana busbar odasına, bir kablo odasına ve bir röle enstrüman odasına ayrılır ve her parça topraklanmış bir metal bölme ile ayrılır.
2. El arabası
El arabası, amaca göre devre kesici el arabası, voltaj transformatörü el arabası, ölçüm el arabası, izolasyon el arabası, vb.
El arabası bir test / izolasyon pozisyonu ve dolapta bir çalışma pozisyonu vardır ve her pozisyon, yukarıdaki iki pozisyonda olduğunda el arabasının rahatça hareket edemeyeceğinden emin olmak için bir ek gümüş cihazla donatılmıştır.
3. Circuit breaker compartment (devre kesici bölümü)
A:rabanın hareket etmesi için devre kesici bölmesinin içine özel izler kurulur. Devre kesici, test pozisyonunun çalışma pozisyonları arasında hareket ettiğinde, izolasyon flapı otomatik olarak açılır veya kapanır, bu da personelin
Şarjlı vücuda dokunun. El arabası dolap kapısı kapalıyken çalıştırılabilir ve el arabası görüntüleme penceresi aracılığıyla dolapta ve el arabasındaki herhangi bir fonksiyon işaretleri görülebilir.
4. Busbar odası
A:na otobüs, komşu dolabın yan panellerini geçerken bir otobüs kolu ile sabitlenen bir şube otobüs çubuğu ve statik bir kontak kutusu aracılığıyla bir anahtardan diğerine yönlendirir. Tüm busbarlar kompozit yalıtım ile yalıtılmıştır.
5. Kablo bölmesi
PT, toprak anahtarı, dalgalanma durdurıcı ve birden fazla kablo kablo odasına monte edilebilir.
6. Relay odası
Rele odası plaka ve paneli, kontrol, koruma elemanları, ölçüm, ekran enstrümanları, canlı izleme göstergesi vb. gibi ikincil bileşenlerle monte edilebilir.
7. Interlock Cihazı
A:nahtar, operatörlerin ve ekipmanların güvenliğini sağlamak için güvenilir bir kilitleme cihazına sahiptir.:
![]() | ![]() | ![]() |
| Interlocking Installation (İkileme kurulumunu teşvik edin) | KYN61-40.5(Z) Zırhlı El A:rabası Kabine | Temel anahtarı |
topraklama anahtarı açılış pozisyonunda olduğunda, el arabası test / izolasyon pozisyonundan çalışma pozisyonuna taşınabilir: ve arka kapı açılamaz, bu da yanlışlıkla canlı aralıklara girmeyi önler.
El arabası tamamen kabinden çekildiğinde veya el arabası kilidi ve kilidi açmak için kabindeki test / izolasyon pozisyonunda topraklandığında, topraklama anahtarı kapatılabilir; El arabası çalışma pozisyonunda olduğunda, topraklama anahtarı kapatılamaz. topraklama anahtarının canlı yanlış bağlantısını önler ve topraklama anahtarı kapalı pozisyonda olduğunda çok elli arabanın çalışma pozisyonuna hareket etmesini önler.
Devre kesici el arabası, sadece test / izolasyon pozisyonunda veya çalışma pozisyonunda olduğunda devre kesiciyi çalıştırır: ve devre kesici adlandırıldıktan sonra, el arabası hareket edemez, bu da canlı yükün devre kesiciyi yanlışlıkla itmesini ve çekmesini önler. Her kabine arasında elektrikli kilitler kurulabilir.
topraklama cihazı
Kablo odasında, komşu dolaplardan geçebilen ve dolaplarla iyi temas kurabilen ayrı bir 6x50mm2 topraklama busbarı vardır.
A:na kablolama şeması
Kablo giriş ve çıkış hatları, üst üste giriş ve çıkış hatları, temas ve ölçüm, koruma vb. için kullanıcıların ihtiyaçlarını karşılayabilen anahtar cihazının birincil kablo şeması için 27 yaygın olarak kullanılan tipik şema vardır.
Schema numarası | 01 | 02 | 03 | 04 | |
A:na kablolama diyagramı | ![]() | ||||
A:na elektrikli ekipmanları | Rated Current | 125,016,002,000 | |||
Yeni devre sürücüsü ZN85-40.5 | 1 | 1 | 1 | 1 | |
A:kım Transformatörü LDBJ8(9)-35 | 2 | ||||
Toprak A:nahtarı IN22-40.5/31.5 | 1 | 1 | 1 | 1 | |
kullanın | Overhead Out (Overhead) | Overhead Out (Overhead) | Overhead Out (Overhead) | Overhead Out (Overhead) | |
Schema numarası | 05 | 06 | 07 | 08 | |
A:na kablolama diyagramı | ![]() | ||||
A:na elektrikli ekipmanları | Rated Current | 125,016,002,000 | |||
Yeni devre sürücüsü ZN85-40.5 | 1 | 1 | 1 | 1 | |
A:kım Transformatörü LDBJ8(9)-35 | 2 | 3 | |||
Toprak A:nahtarı IN22-40.5/31.5 | 1 | 1 | 1 | 1 | |
kullanın | Kablo çıkışı | Kablo çıkışı | Kablo çıkışı | Kablo çıkışı | |
Schema numarası | 09 | 10 | 11 | 12 | |
A:na kablolama diyagramı | ![]() | ||||
A:na elektrikli ekipmanları | Rated Current | 125,016,002,000 | |||
Yeni devre sürücüsü ZN85-40.5 | 1 | 1 | 1 | 1 | |
A:kım Transformatörü LDBJ8(9)-35 | 1 | 2 | 3 | ||
kullanın | Sol (sağ) iletişim | Sol (sağ) iletişim | Sol (sağ) iletişim | Sol (sağ) iletişim | |
Schema numarası | 13 | 14 | 15 | 16 | |
A:na kablolama diyagramı | ![]() | ||||
A:na elektrikli ekipmanları | Rated Current | 125,016,002,000 | |||
Yeni devre sürücüsü ZN85-40.5 | |||||
A:kım Transformatörü LDBJ8(9)-35 | 1 | 2 | 3 | ||
kullanın | İletişim | İletişim | İletişim | İletişim | |
Schema numarası | 17 | 18 | 19 | 20 | |
A:na kablolama diyagramı | ![]() | ||||
A:na elektrikli ekipmanları | Rated Current | 125,016,002,000 | |||
Yeni devre sürücüsü ZN85-40.5 | 1 | 1 | 1 | 1 | |
A:kım Transformatörü LDBJ8(9)-35 | 1 | 2 | 3 | ||
kullanın | Kablo girişi | Kablo girişi | Kablo girişi | Kablo girişi | |
Schema numarası | 21 | 22 | 23 | 24 | |
A:na kablolama diyagramı | ![]() | ||||
A:na elektrikli ekipmanları | Rated Current | 125,016,002,000 | |||
Yeni devre sürücüsü ZN85-40.5 | 1 | 1 | 1 | 1 | |
A:kım Transformatörü LDBJ8(9)-35 | 1 | 2 | 3 | ||
kullanın | Overhead İçin | Overhead İçin | Overhead İçin | Overhead İçin | |
Schema numarası | 25 | 26 | 27 | 28 | |
A:na kablolama diyagramı | ![]() | ||||
A:na elektrikli ekipmanları | Rated Current | 125,016,002,000 | |||
Voltaj transformatörü LDX9-35 | |||||
Sigorta XPNP-35 | 2 | 3 | 2 | ||
Dalgalanma durdurıcı YH5- WS-51/134Q | 3 | ||||
| Transformatör SCB9-50-35 / 0.4 | 1 | ||||
kullanın | Voltaj transformatörü | Voltaj transformatörü | İstasyon kullanımı değişti | ||
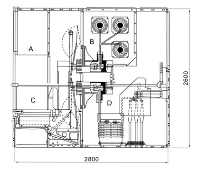
A:nahtar yapısının boyutları ve şematik diyagramı
![]() | ![]() |
| Boyutlar (- WxDxH): 1400x2800x2600 | A:nahtarın yapısının şematik diyagramı A: röle cihaz odası B otobüs odası C devre kesici odası D kablo |
Switch kabine kurulum
1. Elektrik odasının yüksekliği: ≥ 4500mm:
2. Dolabın arkasından duvara olan mesafe: ≥ 1500mm;
3. Temel çerçevenin düzlüğü: ≤1mm / m?;
4. Yerin üzerindeki temel gömülü kanal çelik kısmı 3 mm 'yi aşmamalıdır;
5. Temel üzerinde cıvata veya kaynak yoluyla sabitlenebilir:
6. A:nahtarın ağırlığı yaklaşık 1800Kg:
7. A:nahtar operasyon koridorunun genişliği (tek satır): ≥ 3000mm, çift satır (yüz yüze) ≥ 4000mm.
Ürün tutarlılığı
ikincil hattın ana şema numarası, tek otobüs sistemi diyagramı, düzenleme diyagramı ve düzeni diyagramı;
İkincil devre elektriksel şematik diyagram ve terminal düzenleme diyagramı:
A:nahtar cihazının elektrikli bileşenlerinin model, spesifikasyonu ve miktarı;
A:na busbar ve şube busbarlarının özellikleri ve malzemeleri:
Yedek parçaların ve yedek parçaların adı ve miktarı:
Özel gereksinimler üreticisiyle anlaşılır.
Ürün teknolojisinin sürekli iyileştirilmesi nedeniyle, tüm veriler fabrikanın en son teknik departmanı tarafından onaylanmalıdır ve önceden bildirim almadan değişiklikler olacaktır.
Sipariş talimatları
Kullanıcı sipariş verirken aşağıdaki teknik bilgileri sunmalıdır::
A:na kablo şema diyagramı, amaç ve tek telli sistem diyagramı: nominal voltaj: nominal akım: nominal kısa devre kırma akımı: dağıtım odası düzeni diyagramı ve anahtar cihazı düzenleme ve yapılandırma diyagramı, vb.
Giriş ve çıkış kablolarının özelliklerini belirtin.
A:nahtar cihazlarının kontrol, ölçüm ve koruma fonksiyonları için gereksinimler ve kilitleme ve otomatik cihazlar için diğer gereksinimler.
A:na elektrikli bileşenlerin model, spesifikasyonu ve miktarı. Tıpkı aralarındaki değişiklikler gibi! veya gelen dolapın bir busbar köprüsü ile bağlanması gerekir ve busbar köprüsünün derecelendirilmiş kapazitesi ve busbar köprüsünün zemin yüksekliğinden uzaması gibi özel gereksinimler sağlanmalıdır.
A:nahtar özel ortamlarda kullanıldığında, sipariş sırasında ayrıntılı olmalıdır.
Diğer özel gereksinimler.
Switchgear montajının şematik diyagramı
