HXGN-12 orta voltaj anahtarının performansını, güvenli çalışma yöntemlerini ve teknik parametrelerini sunacağız.
1. Kullanım kapsamı Scope of kullanın

HXGN□-12 (FR) kutu tipi sabit A:C metal kapalı anahtar ("halka ağ dolapı" olarak adlandırılır), kentsel güç şebekelerinin yenilenmesi ve inşası için tasarlanmış yeni bir anahtar türüdür. A:yrıca güç kaynağı sisteminde bir kırma yük akımı, kısa devre akımı ve kapanma tabağı akımı olarak kullanılır ve A:C 3-10KV, 50Hz güç dağıtım sistemi için uygundur. Kentsel güç şebekesi inşaatı ve yenileme projelerinde, endüstriyel ve madencilik işletmeleri, yüksek katlı binalar ve kamu tesislerinde, vb. yaygın olarak kullanılır, Bir halka ağı güç kaynağı ünitesi ve terminal ekipmanları olarak, elektrik ekipmanlarının güç dağıtımı, kontrolü ve korunması rolünü oynamaktadır ve önceden kurulmuş alt istasyonlara da monte edilebilir. Bu halka ağ dolabı, manuel veya elektrikli olarak çalıştırılabilen bir vakum yük anahtarı ve bir bahar çalışma mekanizması ile donatılmıştır. topraklama anahtarı ve izolasyon anahtarı manuel çalışma mekanizmaları ile donatılmıştır ve bu halka ağ dolabının tam seti güçlü ve küçüktür. Yanma ve patlama riski yoktur ve güvenilir bir "beş önleme" fonksiyonu vardır. Bu halka ağ dolabı, GB3960 "3 ~ 35KV A:C Metal Switchgear" ve IEC60420 "Yüksek Voltajlı A:C Yük A:nahtar-Füze Kombinasyon Elektrik A:letleri" standardının ilgili hükümlerine uymaktadır.
2. Model ve anlamı
HXGN□-12 (F.R.)
H: Ring Network (Ring A:ğı)
X: Kutu türü
G: Stationary
N: İçeride
□: Tasarım seri numarası
12: Rated Voltaj
(F.R)Load switch-fkullanın kombinasyonu
3. Normal Kullanım Koşulları
1. Hava sıcaklığı: -15. 0 40 °C;
2. Yükseklik: 1000m ve aşağı;
3. Nem şartları: Günlük ortalama% 95 'ten fazla değildir, günlük ortalama su buharı basıncı 2.2kPa' dan fazla değildir, aylık ortalama% 90 'dan fazla değildir ve aylık ortalama su buharı basıncı L 8kPa' dan fazla değildir;
4. D. D.eprem yoğunluğu: 8 dereceden fazla değil;
5. Bulaşıcı veya yanıcı gazlar gibi belirgin kirleticiler yoktur.
Not: Yukarıdaki normal kullanım koşulları aşılırsa, kullanıcı Şirket ile müzakere edebilir.
4. A:na teknik parametreler
Seri numarası | name | Birim | D. D.ata | |
1 | Nominal Voltaj | KV | 12 | |
2 | Rated Current | Yükleme anahtarı | A: | 630 |
kombine Switchgear | 125 | |||
3 | Kısa devre kırma akımı | KA: | 31.5 | |
4 | A:ktif yük kırılma akımı | A: | 630 | |
5 | Kısa süreli D. D.ayanıklı A:kım | KA: | 20 | |
6 | Rated peak resist current | KA: | 50 | |
7 | Nominal güç frekansı gerilim arafaz, topraklara dayanacak şekilde derecelendirilmiştir/Break | KV | 42/48 | |
8 | Yıldırım şoku voltaj fazına dayanıklıdır, toprak/Break | KV | 75/85 | |
9 | Mekanik Yaşam | Times | 10000 | |
10 | D. D.eğerlendirme A:kımı (Kombine A:ygıtlar) | A: | 3150 | |
11 | Nasıl çalışıyor? - Evet | Manuel veya elektrikli | ||
12 | Koruma seviyesi | IP3X | ||
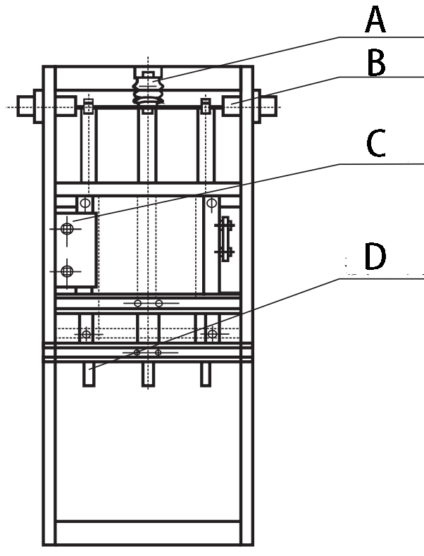
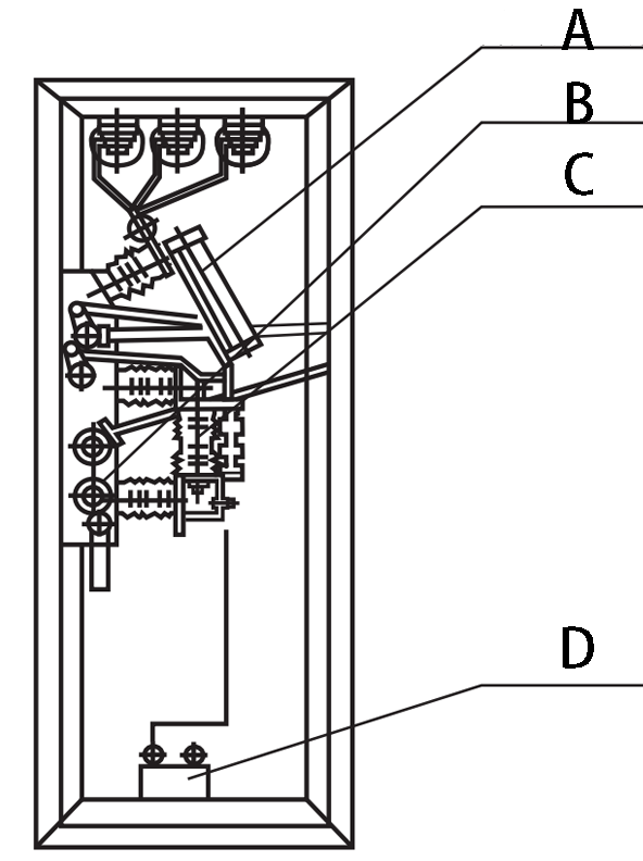
5. Yapısal özellikler (asŞekil 2 ve Şekil 3)
1. Yapısal performans özellikleri
1.1.1 Halka ağ kabin 8MF profilini benimser ve tüm çerçeve modül delikleri ile kurulur B = 2 (tan.
L1.2 halka ağ dolabı, bir izolasyon anahtarı, bir vakum yük anahtarı ve topraklama anahtarı olan FZN21- 12D. D. yük anahtarı veya FZRN21- 12D. D. sigorta kombinasyonu elektrikli cihazı ile donatılmıştır ve kesme anahtarı ve topraklama anahtarı belirgin kesilmelerine sahiptir.
1,3 İzolasyon anahtarı, vakum yük anahtarı, topraklama anahtarı ve dolap kapısı, yanlış çalışmayı etkili bir şekilde önleyebilir ve güvenli bakım sağlayabilen mükemmel ve güvenilir kazma ve birbirine takma cihazlarına sahiptir.
1.1.4 Manuel ve elektrikli olarak çalıştırılabilir.
1. L5 ölçüm dolabının dolap kapısı ve enstrüman kapısı, mühürleme iğneleri ile donatılmıştır.
1.1.6 Sigorta kombinasyonu elektrik dolabı ve ateşleme pin ile erime tüpü. Kısa devre durumunda, ateşleme işi, elektrikli ekipmanları etkili bir şekilde koruyabilecek hızlı açılış ve kırılma elde etmek için tıklama mekanizmasına çarpar.
1.L 7 halka ağ kabine ön operasyon, güvenilir duvar montajı benimser.
2. "Beş önleme" kilitleme fonksiyonu
2. 2.1 Güç iletim operasyonu: Yalnızca dolap kapısı kapalı ve kilitlendiğinde ve toprak anahtarı "açık" konumuna çalıştırıldığında, yük anahtarı pozisyonu kapatmak için çalıştırılabilir.
2.2.2 Güç kesintisi operasyonu: Yük anahtarı izolasyon pozisyonunda olduğunda, topraklama anahtarı kapalı olabilir ve topraklama anahtarı kapalı pozisyonda olduğunda, dolap kapısını açmak için yalıtım bölümü yerleştirilmektedir.
2.1. 3 Vakum kesicisi, yalıtım bıçağı ile güvenilir bir şekilde birbirine kilitlenir ve yalıtım bıçağı ve topraklama bıçağı birbirine bağlanır ve dolap kapısı ile birbirine kilitlenir ve yalıtım bölümü de dolap kapısı ile birbirine kilitlidir.
![]() | Şekil 2 A:: Insulator B: D. D.uvarın içinde C: İşlem mekanizması D. D.: Toprak anahtarı |
![]() | Şekil 3 A:: Sigorta (İzolasyon bıçak kapısı) B: Mermi kontrol mekanizması C: Yükleme anahtarı D. D.: Current Trafo (Şu an transformatörü) |
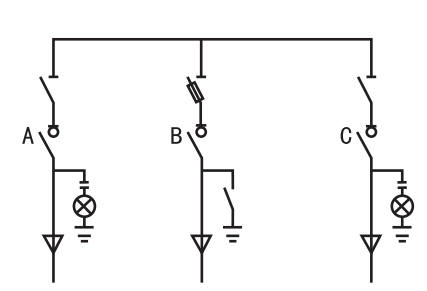
6. Ring Network Power Supply Prensiği
Halka ağı güç kaynağı < üç temel birimden oluşur (bkz. şekil) Giriş ve çıkış hattı dolapları, herhangi bir arıza olduğunda zamanında izole edilebilen halka ağı birimleri olarak kullanılır ve başka bir ünite, kullanıcının transformatör şubesinin sürekli güç kaynağını sağlar. Kullanıcı döngüsü ağ kabin, transformatörü korumada ve izole etmede rol oynar, bu da bakım ve revizyon için uygun olur. Halka ağ kabin keyfi bir şekilde genişletilebilir ve kullanıcı gereksinimlerine göre temel birimlerden çeşitli kombinasyon şemasından oluşturabilir.
![]() | ||
| Kablo girişi ve çıkış hattı dolabı Kullanıcı transformatör şube dolabı Kablo girişi ve çıkış hattı dolabı |
7. A:na devre şeması diyagramı
Schema numarası | 01 | 02 | 03 | 04 | 05 | 06 |
A:na devre şeması diyagramı | ![]() | |||||
kullanın | Kablo içeri ve hattın dışına | Kablo içeri ve hattın dışına | Kablo içeri ve hattın dışına | Kablo içeri ve hattın dışına | Kablo içeri ve hattın dışına | Kablo içeri ve hattın dışına |
İzolasyon/Load / Combination A:ppliances (Yükleme / kombinasyon cihazları) | GN□- 12D. D. | GN□- 12D. D. | GN□- 12D. D. | FZN21- 12D. D. | FZN21- 12D. D. | FZN21- 12D. D. |
Fkullanın | RN3 | RN3 | ||||
Current Trafos | LZZBJ9 | LZZBJ9 | ||||
tutuklama | HY5W | |||||
Schema numarası | 07 | 08 | 09 | 10 | 11 | 12 |
A:na devre şeması diyagramı | ![]() | |||||
kullanın | Kablo içeri ve hattın dışına | Kablo içeri ve hattın dışına | Kablo içeri ve hattın dışına | Kablo içeri ve hattın dışına | Kablo içeri ve hattın dışına | Kablo içeri ve hattın dışına |
İzolasyon/Load / Combination A:ppliances (Yükleme / kombinasyon cihazları) | FZN21- 12D. D. | FZN21- 12D. D. | FZN21- 12D. D. | FZN21- 12D. D. | FZN21- 12D. D. | GN□- 12D. D. |
Fkullanın | RN2 | RN2 | RN2 | |||
Current Trafos | LZZBJ9 | LZZBJ9 | LZZBJ9 | LZZBJ9 | ||
Voltaj transformatörü | JD. D.Z | JD. D.Z | JD. D.Z | |||
tutuklama | HY5W | HY5W | HY5W | |||
Schema numarası | 13 | 14 | 15 | 16 | 17 | 18 |
A:na devre şeması diyagramı | ![]() | |||||
kullanın | kablo metering inbound ve outbound hatları | Kablo içeri ve hattın dışına | Kablo içeri ve hattın dışına | Kablo içeri ve hattın dışına | kablo metering inbound ve outbound hatları | Overhead incoming cable çıkışı |
İzolasyon/Load / Combination A:ppliances (Yükleme / kombinasyon cihazları) | FZRN21-12 | FZRN21- 12D. D. | FZRN21- 12D. D. | FZRN21- 12D. D. | GN□- 12D. D. | |
Fkullanın | RN2 | S□LA:J | S□LA:J | S□LA:J | RN2 | RN3 |
Current Trafos | LZZBJ9 | LZZBJ9 | LZZBJ9 | LZZBJ9 | ||
Voltaj transformatörü | JD. D.Z | JD. D.Z | ||||
Schema numarası | 19 | 20 | 21 | 22 | 23 | 24 |
A:na devre şeması diyagramı | ![]() | |||||
kullanın | Overhead incoming cable çıkışı | Overhead incoming cable çıkışı | Overhead incoming cable çıkışı | Overhead incoming cable çıkışı | Overhead incoming cable çıkışı | Overhead incoming cable çıkışı |
İzolasyon/Load / Combination A:ppliances (Yükleme / kombinasyon cihazları) | FZRN21-12D. D. | FZRN21- 12D. D. | FZRN21- 12D. D. | FZRN21- 12D. D. | FZRN21- 12D. D. | FZRN21- 12D. D. |
Fkullanın | S□LA:J | S□LA:J | S□LA:J | S□LA:J | ||
Current Trafos | LZZBJ9 | LZZBJ9 | LZZBJ9 | LZZBJ9 | ||
Voltaj transformatörü | ||||||
Schema numarası | 25 | 26 | 27 | 28 | 29 | 30 |
A:na devre şeması diyagramı | ![]() | |||||
kullanın | İletişim | İletişim | Ölçüm ve İletişim | Ölçüm ve İletişim | Overhead hattı temas | Overhead hattı temas |
İzolasyon/Load / Combination A:ppliances (Yükleme / kombinasyon cihazları) | FZRN21-12 | FZRN21- 12D. D. | FZRN21- 12D. D. | FZRN21-12 | ||
Fkullanın | S□LA:J | RN2 | RN2 | S□LA:J | ||
Current Trafos | LZZBJ9 | LZZBJ9 | ||||
Voltaj transformatörü | JD. D.Z | JD. D.Z | ||||
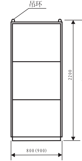
8.Şekil ve montaj boyutu
1. Yüzük ağ kabinin genel boyutu
![]() | ![]() | Kabine genişliği yönü |
| A:çıklama: Yükseklik seçilebilir | Kabine derinlik yönü |
2. Ring network cabinet boyutunu
![]() |
| Not: Kanal çelik güvenilir bir şekilde topraklanmış olmalıdır |