Performans, güvenli çalışma yöntemleri ve ZGS-12 pedli transformatörün teknik parametrelerini sunacağız

1. General provisions
B - Bu kılavuz, mühendislere ve teknisyenlere kombine transformatörlerin (bundan sonra kombineator olarak anılacaktır) montajında, kullanımı ve çalıştırılmasında yardımcı olmak için kullanılır.
Fabrikamız tarafından üretilen kombine transformatör, benchtop montajı için tamamen yalıtılmış, tamamen mühürlü, su geçirmez üç fazlı dağıtım transformatörüdür. the three-phase distribution system with a rated voltage of 10K KV. Meet the requirements of the corresponding national standards
B - Bu kılavuz, elektrikli ekipmanların genel işletim prosedürleri için bir alt sahne değildir ve kurulum, kullanım ve işletim tüm gereksinimlerini karşılayamaz.. B - Bu görevler, güç sisteminin güvenlik ve işletim prosedürlerine aşina personel ile yapılmalıdır.
2. Use conditions and environment
a. A:ltitude: no more than 1000M.
b. A:mbient temperature: -25C to 40C
c. Relative humidity: not more than 95% (daily average).
d. Ground inclination: no exercise 3.
e. Wind speed: no more than 35m/s.
Şiddetli şok ve titreşim olmaksızın iç ve dış mekanlar, ciddi kirlilik ve kimyasal korozyon ortamı ve patlama tehlikesi yoktur.
3. Main technical parameters
Seri numarası | name | B - Birim | High pressure side | Transformör | D. D.üşük basınç tarafı |
1 | Nominal Voltaj | K KV | 10 | 0.4 | |
2 | Maksimum çalışma voltajı | K KV | 12 | ||
3 | Nitelikli kapasite | K KVA: | 50-2500 | ||
4 | Rated Current | A: | 10-630 | 100-2500 | |
5 | Withstand current for a short time | K KA: | 12.5/20 | 12.6-40 | |
6 | Short tolerance time | S | 2 | 1 | |
7 | Peak withstand current | K KA: | 50 | 30-60 | |
8 | Güç frekansı basıncı dayanır | K KV | 35 | 35 | 5 |
9 | Lightning impact withstand pressure | K KV | 75 | 75 | |
10 | High-voltage current-limiting fuses quickly cut off the current | K KA: | 50 | ||
11 | K Koruma seviyesi | Ip33 | Ip65 | Ip33 | |
12 | Gürültü seviyesi | db | W55 | ||
13 | Rated frekansı | Hz | 50/60 |
4. Unpacking acceptance inspection
Ürünün hasar, deforme ve kırılma için kontrol edin. A:ksesuarların ve özel aletlerin paketleme listesine göre tamamlanıp tamamlanmadığını kontrol edin ve install according to the installation requirements after confirming that they are correct.
5. Installation
- A:. Montaj, montajın ağırlığını taşımak için yeterli olan zeminden 100-400mm yüksekliğine sahip bir beton tabanına monte edilmektedir. Montaj boyutunun ve tabanın tavsiye edilen boyut diyagramı Ek 1 'de gösterilir.
B - B. The cable is placed before the group is in place and must be without electricity.
C. K Kutunun üst kısmında yükleme ve boşaltma için bir kanca vardır ve kaldırma çelik kablo ile dikey çizgi arasındaki açı gerildiğinde 30'u aşamaz. Gerekirse, yapı veya kaldırma kancasının deformasyonunu önlemek için çelik kabloyu desteklemek için çapraz çubuk kullanılır. Montaj transformatörünün ağırlığının çoğu, demir çekirdek, sarma ve yalıtım yağı içeren ana kutuda yoğunlaşır ve yüksek ve düşük voltajlı terminal kutularının çoğu boşdur ve ağırlık nispeten hafiftir. (K Kancaların veya vinçlerin uygunsuz kullanımı montaj veya diğer aksesuarlara zarar verebilir veya personelin yaralanmasına neden olabilir.))
Not: Grup transformatörü vinçle kaldırılamazsa, kaykay veya rulo ile kaydırılabilir. K Kutuyu desteklediğinde ve eklediğinde A:şağıdaki rulo, en az iki jak gereklidir ve komşu iki açı kutuyu altındaki deformasyonu önlemek için aynı anda sorunsuz bir şekilde kaldırılmalıdır. The Jack (Çık) Sadece kutunun alt köşelerine yerleştirilebilir ve bir destek plaka eklenmelidir ve jack ısı lavabosunun, valf veya ince çelik altına yerleştirilmemelidir. - Plaka. Roller kullanılırsa, sayı uygun olmalıdır ve kutu ağırlığı eşit şekilde taşınmalıdır. Transformörü çekmeden önce, kutu transformatörünün altının her iki tarafına çek halklar monte edin. K Kabloyu yeniden gruplanmış dökme veya diğer levha metal parçalarına takmayın.
D. D.. Installation site
K Kompozisyonda iki tür yalıtıcı yağ vardır, biri yüksek ateşleme noktası yağı ve diğeri yüksek kaliteli mineral yağıdır. Yüksek ateşleme yağı olan grup transformatörü (açık belirtileri ile Grup transformatörünün düşük voltajlı izolasyon odası) binada veya açık havada kullanılabilir; Mineral yağ bileşiminde kullanılamaz buildings. The freezing point of high-quality mineral oil is -45. B - Bundan sonra; Yüksek ateşleme yağının donma noktası -30 'dur. 1. Yüksek ateşleme yağı kombinasyonu, -30 °C'den düşük bir ortam sıcaklığına sahip alanlarda kullanılamaz. Yüksek kaliteli mineral yağın veya yüksek ateşleme yağın bir kombinasyonu olsun, ortam sıcaklığı -20 ° C'den düşük olduğunda çalıştırılırsa, ön ısıtma için bir yük olmadan 24 saat çalıştırılmalı ve daha sonra kademeli olarak yüklenmelidir. Eğer şüphe varsa, lütfen fabrikamıza başvurun.
6. Handover test
K Kurulum tamamlandıktan sonra, test kablosu fişini bağlayın (test kablosu fişi opsiyonel olarak satın alınabilir) ve teslim testi ulusal standardın ilgili test prosedürlerine göre gerçekleştirin.
7. Installation precautions
A:. When accessing the system
B - Before wiring any system, Önce kutuyu yere koy. K Kutunun topraklama terminali sabit, düşük impedance danslı bir topraklama noktasına bağlanmalıdır.
K Kablolamadan önce tüm kolları, burçları, terminal terminallerini ve kontakları temizleyin ve tüm toz, yağ ve yabancı nesneleri temizleyin.Connecting the neutral point of the group change and the neutral point of the system.
Install accessories as required to ensure the insulating oil is at the appropriate height.
When no one is on duty, close and lock the box door.
8. When operating
☆ Normal koşullar altında, sigorta takma işlemi güç kesildikten sonra yapılmalı ve ilgili kullanım talimatları işlemden önce dikkatlice okunmalıdır.
☆ D. D.ahili yük anahtarı sadece anma akımını kesmek için kullanılabilir, ancak arıza akımını kesmemek için kullanılabilir.
☆ Insulated operating lever must be used to operate the load switch.
C. When maintenance is required
☆ Grup transformatörü sistem çalışırken tamir edilemez. B - Bakım öncesinde, izolasyon, güç kapatılmalı ve grup transformatöründen tamamen izole edilmelidir.
☆ Fişini çalıştırın, yağ enjeksiyon valfini açın ve yağ deposu açılmadan önce transformatörün iç basıncını serbest bırakın (basınç rahatlatıcı valfini çıkarın) ve iç basınç sıfır olmadan önce yukarıdaki işlemleri yapmayın.
Warning: The released gas may be flammable, so be careful when releasing it.
K Kesinlikle gerekli olmadıkça grup transformatörünün kutusunun kapağını açmayın. A:çmadan önce, temiz the area around the lid and close it in the shortest possible time to prevent moisture and dust from entering the box. D. D.o not turn on the group change in wet or rainy weather.
8. Operation
A:. Inspection before commissioning
☆ K Kablo bağlantılarının gerektiği gibi bağlanıp bağlanmadığını ve gövde bağlantılarının ve dirsek fişlerinin yerinde bağlı olup olmadığını kontrol edin;
☆ Tüm kablo bağlantıları ve kutunun topraklama teli, kararlı, düşük impedance danslı bir topraklama noktasına bağlanmalıdır;
☆ A:fter confirming that there is no problem, it can be put into operation;
☆ Grup transformatörü çalıştırılmadan önce, kutudaki yağ seviyesinin yüksekliği kontrol edilmelidir ve yağ seviyesinin yüksekliği doğrudan yağ seviyesinden okunmalıdır ve yağ seviyesi 25 ° C'de 25 ° C'de yağ seviyesinin belirtilen konumu olmalıdır.
Note: Grup değişikliğini uygulamaya koymadan önce, grup değişikliğini derinlemesine anlamanız gerekir. Tüm ekipman ve aksesuarların uygulamaları ve işlevlerinize aşina olduğundan emin olun. Lütfen operasyon sırasında koruyucu giysiler ve gerekli koruyucu ekipman giyin ve topraklama, test, izolasyon veya ekipmanı kapatırken yalıtılmış çalışma kollarını kullanın. Yeniden grup durumu belirlenemediğinde, canlı tedavi olarak tedavi edilir.
B - B. Preparation for commissioning
a. Refill oil
When needed, oil should be replenished in a timely manner
☆ K Kirlenmeyen pompalar ve hortumlar kullanın; Lastik hortumlar kullanmayın. Yağ içinde bulunan kükürtleri çözeceği için, metal veya lastik olmayan hortumlar kullanılmalıdır.
☆ Connect the oil outlet pipe of the oil pump to the oil injection port of the oil tank.
Sealed yağ giriş borusunun havada çekmesine izin vermemek için dikkat ederek, kapalı geçici kabın altından yağı geri pompalayın.
☆ To prevent high-speed oil flow inflation, pump slowly until the oil level is required.
b. Grounding
Trafo muhafazasındaki özel zemin kalıcı bir topraklama noktasına bağlanmalıdır.
c. High-voltage wiring
☆ Montaj, evrensel yüksek voltajlı kovan soketi ile donatılmıştır. K Kılıf soketi ile eşleşen tek geçişli veya çift geçişli kolların alana takılması gerekir. Tek geçişli ve çift geçişli kılıfın montaj yöntemi Ek 3 'te gösterilmiştir.
☆ Ek 4'te açıklanan montaj yöntemine göre yüksek voltajlı kablo kablosuna toggle kablo fişini takın ve ardından toggle fişini tek veya çift geçiş kılıfına takın.
d. Low voltage wiring
D. D.üşük voltajlı kabloları bağlamak için montaj transformatöründe üç fazlı ve nötr tel terminalleri vardır.
Notice: Grup sadece isim plakalarında belirtilen derecelendirme ile çalışabilir ve uzun süreli aşırı yükleme operasyonu yaşam beklentisini önemli ölçüde etkileyecektir. Grup çok uzun süre dışarıda saklanırsa, nem içeriğini ve dielektrik gücünü kontrol etmek için yağ örnekleri alınmalıdır. Grup fabrikadan ayrıldığında, genellikle kutudaki yağ yüzeyinin üzerinde düşük bir vakum vardır (basınç ölçüsü negatif basınç gösterir), normal koşullar altında çalışma veya ortam değişimi ile değişebilir, basınç ölçüsü uzun süre sıfır basınç gösterirse, sızıntı olabileceğini gösterir ve daha fazla denetim gerektirir.
C. Operational requirements
☆ İşlemden önce, hattın çalışma durumu ve musluk değiştiricisinin pozisyonu anlaşılmalı ve yük anahtarı transformatörden kopmuş bir pozisyonda olmalıdır;
☆ Understand the purpose and function of all cable glands before operation;
Operator operatör en iyi konumda durmalı ve operasyondan önce yükü çalıştırmak için yalıtımlı işletim kolunu kullanmalıdır.
☆ Ilgili yüksek basınçlı işletim yönetmeliklerine göre, güvenliği sağlamak için gerekli koruyucu ekipman kullanılmalıdır.
D. D.. Power transmission
Close the previous level switch, and then turn Yük anahtarı, 8 gereksinimlerine göre transformatörü bağlama pozisyonuna. 3, ve grup transformatörü çalışmaya koyulacaktır.
9. A:ttachments
A:. Tap changer
☆ Grup değişken musluk değiştiricisi, yüksiz bir musluk değiştiricisidir ve musluk değiştiricisi işleminin yalnızca gücün kesildiği doğrulandığında gerçekleştirilebilir.
Tap musluk değiştirici, a, b, c, d ve e ile işaretlenmiş üç veya beş vitese sahiptir ve musluk çıkışı aralığı 10kv ± % 5 veya 10kv ± 2 * 2'dir. % 5 。
☆ Tap-değişicinin "T" şeklindeki işletim kolu, işlemden önce yüksek basınçlı odanın paneline monte edilir, kilitleme cıvata açılır ve daha sonra istenen konuma döndürülür ve kilitleme cıvata ayarlamadan sonra sıkılır. B - Bir kilit eklemek için, kilitleme cıvatalarını aşağıya sıkıp bir kilitle kilitleyebilirsiniz.
Note: Grup transformatörü, musluk değiştiricisini çalıştırmadan önce kapatılmalıdır, aksi takdirde gruba zarar verecek ve ciddi kişisel yaralanmalara yol açabilir.
Yükleme anahtarı
☆ Yük anahtarı, hızlı bir bahar çalışma yapısına sahip üç fazlı bir bağlantı anahtarıdır.İki tip vardır: 2 pozisyon ve 4 pozisyon. B - Bunlar arasında, terminal tipi transformatörler için 2 pozisyon, halka ağı tipi transformatörler için 4 pozisyon kullanılır.
☆ The load switch can only be used to interrupt the load current, not the short-circuit current.
☆ Insulated operating rod must be used to operate the load switch.
Insertion fuse
Plug plug-in sigortalar, sigortaları değiştirme yöntemi için ek 2'de gösterildiği gibi, dışarıdan sigortaları değiştirmek için kolaylık sağlar.
☆ Farklı kombinasyon kapasiteleri, kullanılan sigorta spesifikasyonları farklıdır, bu nedenle sigorta değiştirirken dikkat etmelisiniz. Seçilen tüm sigorta modelleri, her grup transformatörünün yüksek basınçlı odasının kapısının iç kısmında işaretlenir ve sigorta değiştirirken aynı sigorta türü seçilmelidir ve farklı kapasitelerin kutu transformatörleri için seçilen sigorta modelleri aşağıdaki gibidir::
capacity | Insertion fuse specification |
100 | 4038108C06 |
125 | 4038108C07 |
160 | 4038108C07 |
200 | 4038108C09 |
250 | 4038108C09 |
315 | 4038108C09 |
400 | 4038108C12 |
500 | 4038108C12 |
630 | 4038108C12 |
800 | 4038108C14 |
1000 | 4000353C16 |
1250 | 4000353C16 |
1600 | 4000353C17 |
D. D.. Cable accessories
K Kablo aksesuarları: dirse fişleri, tek geçişli kollar (veya çift geçişli kollar), tek geçişli konektörler (veya çift geçişli konektörler), yalıtım koruyucu kapaklar, see A:ppendix 3-5 respectively.
E. Surge arresters
Grupta bir yıldırım durdurma cihazı kurmanız gerekiyorsa, tamamen yalıtılmış dirseye tipi çinko oksit durdurma cihazını seçebilirsiniz. K Kurulum sırasında, grup treni benimser bir çift geçişli kovan, çift geçişli kovanın bir ucu dirseye tip fişe bağlanır ve diğer ucu bir yıldırım durdurma cihazına bağlanır. Surge arrester kurulum yöntemi:
☆ Connect the grounding wire to the system ground.
☆ Use copper wire to connect the grounding end of the arrester with the system grounding.
☆ Use the contact surface of the lubricated arrester provided by this factory.
☆ A:rrestörün operasyon deliğini takmak için yalıtılmış çalışma kolu kullanın ve durduruyu kuvvetle kovan eklemine yerleştirin ve durduruyu yerleştirdiğinizden emin olun. Not: Testten sonra durdurma cihazı çıkarılmalı ve yeniden kurulmalıdır.
F. Fault indicator and voltage display
See A:ppendix 6
10. Maintenance
A:. External maintenance
Regularly inspect all external surfaces of the composition, and repair it immediately if the coating has accidental bruises, scratches and wear.
B - B. Internal maintenance
Grubun yüksek ve düşük basınçlı odalarındaki tüm aksesuarların ve aletlerin normal çalışıp çalışmadığını düzenli olarak kontrol edin ve her bir sızdırma parçasında herhangi bir sızıntı olup olmadığını kontrol edin.
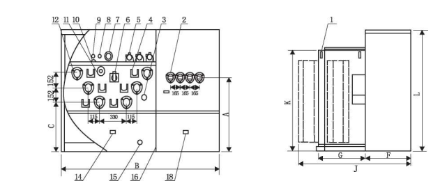
A:ppendix 1 Combined Transformör size and installation
| 1 Hook 11 Oil temperature gauge 2 Low voltage casing 12 High voltage casing socket 3 tap-changer 13 heatsink 4 wall-mounted 14 high-pressure chamber grounding 5 Plug-in fuse 15 Oil drain valve 6 load switches 16 bulkheads 7 Pressure Gauge 17 Fuel Tank 8 Pressure relief valve 18 Grounding of the low pressure chamber 9 Oil injection port 19 High pressure chamber 10 Oil level gauge 20 nameplate |
Figure 1-1 D. D.imensional diagram of standard ring mesh type and terminal crucian carp combining press
Composition Capacity (kVA:). | A: | B - B | C | D. D. | E | F | G | H | J | K K | L |
100 | 1030 | 1971 | 680 | 1091 | 880 | 536 | 560 | 1350 | 1176 | 1346 | 1580 |
125 | 1030 | 1971 | 680 | 1091 | 880 | 536 | 560 | 1350 | 1176 | 1346 | 1580 |
160 | 1030 | 1971 | 680 | 1091 | 880 | 536 | 560 | 1350 | 1176 | 1346 | 1580 |
200 | 1030 | 1971 | 680 | 1091 | 880 | 536 | 560 | 1350 | 1176 | 1346 | 1580 |
250 | 1030 | 1971 | 680 | 1091 | 880 | 536 | 560 | 1350 | 1335 | 1346 | 1580 |
315 | 1030 | 1971 | 680 | 1091 | 880 | 536 | 560 | 1350 | 1335 | 1346 | 1580 |
400 | 1030 | 1971 | 680 | 1091 | 880 | 536 | 560 | 1350 | 1335 | 1346 | 1580 |
500 | 1030 | 1971 | 680 | 1091 | 880 | 536 | 560 | 1350 | 1335 | 1346 | 1580 |
630 | 1290 | 2000 | 796 | 963 | 1037 | 660 | 660 | 1440 | 1540 | 1486 | 1710 |
800 | 1290 | 2000 | 796 | 963 | 1037 | 660 | 660 | 1440 | 1675 | 1486 | 1710 |
1000 | 1290 | 2000 | 796 | 963 | 1037 | 660 | 660 | 1440 | 1765 | 1486 | 1710 |
1250 | 1200 | 2205 | 836 | 1158 | 1047 | 660 | 760 | 1440 | 1865 | 1486 | 1710 |
1600 | 1200 | 2205 | 836 | 1213 | 992 | 660 | 800 | 1700 | 1920 | 1526 | 1710 |
Note: (1). The above dimensions are for reference only;
(2). The terminal type and the ring mesh type have the same overall dimensions.
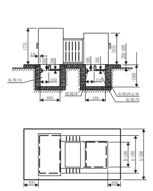
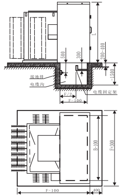
|
|
Figure 1-3 Schematic diagram of the installation of standard combined Transformör | Figure 1-4 Schematic diagram of the installation of the sub-mother combined Transformör |

1 Grounding of the low-pressure chamber 2 Low pressure casing 3 Hooks 4 Hyperbaric chamber 5 Fuel tank 6 Heat sink 7 Wall mounting 8 Oil Injection Port 9 Pressure relief valve 10 Oil level gauge | 11 Pressure gauge 12 Yükleme anahtarı 13 Plug-in fuse 14 tap-changer 15 Grounding in the hypervoltic chamber 16 High Voltage Casing Socket 17 Spare Nuts 18 Grounding of the low-pressure chamber 19 Nameplates |
Transformasyon kapasitesi (K KVA:). | A: | B - B | F | G | K K |
100 | 2000 | 1400 | 660 | 1400 | 730 |
125 | 2000 | 1400 | 660 | 1400 | 730 |
160 | 2000 | 1400 | 660 | 1400 | 730 |
200 | 2000 | 1400 | 660 | 1400 | 730 |
250 | 2000 | 1400 | 660 | 1400 | 730 |
315 | 2000 | 1400 | 660 | 1400 | 730 |
400 | 2000 | 1400 | 660 | 1400 | 730 |
500 | 2000 | 1400 | 660 | 1400 | 730 |
630 | 2205 | 1400 | 800 | 1465 | 755 |
800 | 2205 | 1400 | 800 | 1465 | 755 |
1000 | 2205 | 1400 | 800 | 1465 | 755 |
1250 | 2205 | 1400 | 800 | 1465 | 755 |
Note: (1). The above dimensions are for reference only;
(2). The terminal type and the ring mesh type have the same overall dimensions.
A:ppendix 2 Plug-in fuses
Pull out the fuse tube
1. B - Basınç serbest bırakma valfini çıkarın ve yakıt deposundaki basınç tamamen serbest bırakıldıktan sonra, sigorta borusu çalışma deliğini yalıtımlı çalışma koluyla takın.
2.İşletim tutamaçını aşağı iterek, işletim tutamaçının hareketli kancası sigorta tüpünün işletim deliğini kilitler ve sigorta tüpü ve sigorta koltuğu arasındaki kilitleme durumunu serbest bırakmak için sigorta tüpünün kilit kancasını 90 ° döndürün.
3. sigorta tüpünü yaklaşık 100mm yukarı doğru çekin, birkaç saniye bekleyin ve sigorta tüpündeki yağdan sonra sigorta tüpünü yavaşça çekin.
4. Hold the handle and wipe off the oil stains from the fuse tube.
Not: Yağın sigorta montajından akması tespit edilirse, basınç serbest bırakma valfi, tankın içi ve dışındaki basıncı dengelemek için tekrar çekilmelidir.
Replace the fuse
1. kaynaşmış borunun somununu bir anahtarla gevşetin ve diğer somunu başka bir anahtarla sökün. (Resim 2-1)
2. Loosen the end bolts and remove the fuse. (Picture 2-2)
(Not: sigorta kaynaşmamışsa, düzleştirilmiş huni şeklindeki elektrot, sigorta kaldırılamadan önce düzleştirilmelidir)
3. Inspect the inside of the fuse pipe to ensure cleanliness.
4. bir uçtan yeni bir sigorta takın ve sigorta alevlendi elektrot sap ucuna önceden monte edilir. (Resim 2-3)
5. Install the fuse pipe and fasten it with a wrench, the torque is about 5.7 - 8N.m.
6. Huni şeklindeki elektrotu düzleştirin, iç cıvataları takın, erimişleri yakalamak için bir anahtar kullanın, uç cıvataları sıkmak için başka bir anahtar kullanın, tork yaklaşık 5.7-8N.m ve ardından uç cıvataları açın, huni şeklindeki elektrotun iyi temas sağlamak için düz olup olmadığını kontrol edin.
Install plug-in fuses
1. Hook the fuse pipe operation hole with an insulated operating lever.
2. Sigorta tüpünü sigorta koltuğuna yerleştirin, sigorta tüpünün kilit kancasını 90 ° döndürün ve sigorta tüp koltuğu arasındaki mühürü sağlamak için sigorta kancası için kilit sıkın.
Picture 2-1 | Picture 2-2 | Pictures 2-3 |
A:ppendix 3 Single-channel sleeve and dual-channel sleeve
D. D.ouble channel pipe cleaning, lubrication and installation 1.Çift geçişli kovanın ve kovan koltuğunun temas yüzeyini tek geçişli kovanın gereksinimlerine göre temizleyin, yağ uygulayın ve çift geçişli kovanı saat yönünde vidalayın, ta kişi boş duruncaya kadar ve sıkılaştırıldıktan sonra bir ses çıkarın. 2. Use a fixing plate to position the double pipe. 3. 0 kullanın. Çift borunun topraklama deliğini sistem zemini ile bağlamak için 8mm veya eşdeğer bakır tel. 4. eşleşen parçaları (dirsek fişleri, parafudrlar veya yalıtım koruyucu kapaklar vb.) takın. |
|
Single-channel pipe cleaning, lubrication and installation 1. K Kılıfın ve tüp koltuğunun temas yüzeyini temizleyin, yağ uygulayın, tek geçişli kılıfın saati yönünde vidayı yapın ve özel bir aletle sıkın (yedi buçuk dönüş). Note: If the tool is installed with torque, the torque is 13.5N. m. 2. Ground the grounding hole of the single-pass casing with a flexible wire. |
|
A:ppendix 4 Elbow plug
|
|
Figure 4-1 | Figure 4-2 |
Instructions for installing the elbow plug
1 .Three-core cable split phase treatment
☆ Cut off the inner and outer sheaths at the cable end > 800mm.
☆ A:yırma aşamasında şube eldivenlerini takın, her bir tek fazlı telde ısı shrink muhafaza (zırh tabakası topraklama), bkz. 4-2 for each treatment size.
2 .Elbow plug mounting
☆ İletkenin yüzeyini bir kablo fırçası ile temizleyin, soğuk baskı eklemini kablo iletkenine koyun, bağlayıcı iletkenini soğuk baskı ekleminin vida deliğine vidalayın ve gelecekteki kovanın içinden tek (ikili) ekleyin.
☆ Uygun sıkma aracını seçin, sıkma soğuk sıkma bağlantısının bakır ve alüminyum bağlantısından başlamalı ve dönmelidir 90° for each pressing, and remove excess lubricant with a soft cloth.
☆ Pull out the connecting conductor and screw it down.
☆ K Kablo yüzeyini ve dirse fişinin içini temizleyin ve yağlayın, kabloyu yavaşça dirse fişine itin ve korumalı konektörle bağlantıyı yönlendirin. Soğuk baskı eklemindeki vida deliği dirse fişinin sonunda görünür.
Connecting bağlantı iletkenini soğuk preslenmiş eklemin vida deliğine vidalayın ve burulma olana kadar bir montaj anahtarı ile sıkın 180. (If.)
With other wrenches, the torque is about 12.4N.m) o
☆ Use insulating self-adhesive tape to wrap the elbow plug and the cable heat shrink sleeve.
Elbow dirsek fişinin zemin deliğini sistem topraklama noktası ile bağlamak için bir topraklama kablosu kullanın.
Load input
☆ Sufficient operating distance should be ensured.
☆ Use an insulated operating rod to hook the elbow plug operating hole.
☆ D. D.irse fişinin bağlayıcı iletkenini kol iletkenle hizalayın ve bağlı olduğunu hissedene kadar ileri itin, yani, yerine itdiğinizden emin olun.
☆ The operation should be fast, accurate, decisive and powerful.
Load cut-off
☆ Hook the elbow plug operation hole with an insulated operating lever.
Casing gövde yüzeyi ve dirsek fişi arasındaki sürtünmeyi azaltmak için yalıtılmış çalışma kolunu sola ve sağa çevirin.
☆ D. D.irse fişini hızlı, doğru, kararlı ve güçlü bir şekilde çıkarın, iletkenin yakındaki toprak teline dokunmaması için dikkatli olun.
☆ Hang the elbow plug on the single (double) through connector with an insulated operating lever.
Conductive iletken kısımdaki topraklama kablosuna bağlı yalıtım koruyucu kapağını kapatmak için yalıtım çalışma kolunu kullanın.
Notice: D. D.irse fişinin çalışması, güç sisteminin güvenliğini ve işletim prosedürlerini bilen personel tarafından yapılmalıdır.
Sadece acil (veya özel) durumlarda yükleri ayırmak için dirsek fişleri kullanın ve uygun bir anahtar kullanmanız önerilir.
Elbow plugs cannot be used to close short circuit faults.
A:ppendix 5 Single (double) pass fittings and insulation protective caps
Single tek (çift) geçiş konektörü, canlı bir dirsek fişine takmak, canlı kabloyu izole etmek, segmente etmek veya takmak ve çekmek için kullanmak için kullanılır.
The electrified elbow plug plays a role in dust, water and moisture.
☆ Çift yönlü konektör, bir ucunda bir dirsek tipi fişe ve diğerinde bir dirsek tipi parafure bağlanabilir.
☆ Insulation protective caps provide insulation and protective envelopes for sleeves and joints.
Single (double) pass mounting
1. taşıma koruyucu kapağını çıkarın, temiz ve yağlayın {kollu} ile tek (çift) gereksinimlerine bakın.
2. sistem zemini ile eklem topraklama deliğinden tek (çift) bağlamak için bakır tel kullanın.
3. Hang the single (double) through joint on the wall hanging and tighten the fixing bolt.
4. Seal the corresponding joints with insulation caps.
Not: tüm ilgili bileşenler, tek (çift) geçişli konektör kurulamadan ve kaldırılmadan önce hiçbir güç durumunda olmalıdır.
Insulation protective cap installation
1. yalıtım koruyucu kapağının iç yüzeyi ile ilgili eklemin (veya gövdenin) dış yüzeyini temizleyin ve yağlayın.
2. Connect the grounding wire of the insulation protective cap with the system ground.
3. K Koruyucu kapak jakını yalıtımlı çalışma koluyla takın ve yalıtımlı kapayı yerine bağlanana kadar ilgili eklem (veya kılıf) içine itin.
Remove the insulating protective cap
1. Hook the protective cap with an insulated operating lever.
2. temas yüzeyinin sürtünmesini azaltmak için koruyucu kapağı sola ve sağa çevirin ve koruyucu kapağı çıkarmak için sert bir şekilde geri çekin.
A:ppendix 6. Fault indicator and live indicator
The fault indicator is installed on the test point of the elbow plug, hat akınca, hat göstergesinin göstergesi beyazdır ve otomatik olarak kırmızıya döner, bu durumda hatın "hat" durumunda olduğunu gösterir, devre normale döndüğünde, sistem gösterge penceresini otomatik olarak sıfırlayacaktır ve beyaz olacaktır. A:rıza göstergesinin, yaklaşık 400A: (RMS) ve yaklaşık 800A: (RMS) yüksek bir eşiği olan yüksek ve düşük iki seçilebilir eşiğe sahiptir. Teslimat sırasında, hata göstergesinin ekran penceresi hata göstergesinde ayarlanır (yani, kırmızı renkte görüntülenir), ve kurulumdan sonra, hat voltajı 5K KV 'ye ulaştığında, birkaç dakika sonra, arıza göstergesi normal çalışma durumundayır ve ekran penceresi otomatik olarak normal duruma sıfırlanır (yani, B - Beyaz olarak gösterilir).
Note: Only when the line-to-ground voltage of the line reaches more than 5K KV, the fault indicator can perform fault display and reset for energy storage.
The live indicator is installed on the test point of the elbow plugVe gösterge ışığının sürekli yanıp sönmesi, hattın hat arayıcısını uyarmak için canlı olduğunu gösterir.
A:rıza göstergeleri ve canlı göstergeler, çok çeşitli iklimlerde ve gösterge durumlarında kullanım için tamamen kapalı ürünlerdir. will not change due to vibration or mechanical shock.
Installation steps:
1. Göstergenin montajı iki duruma ayrılır: kablo kafası canlı ve canlı değildir, normal koşullar altında, kablo kafası kurulumdan önce devre dışı bırakılmalı ve topraklandırılmalıdır.
2. dirsek fiş test noktasının koruyucu kapağını yalıtılmış bir işletim kolu ile çıkarın (test noktası leke ve pas içermez).
3. Lubrication indicator mounting the inner surface of the boot.
4. Göstergenin işletim deliğini yalıtılmış işletim koluyla takın, göstergeyi dirse fişinin test noktasına koyun ve uygun konuma döndürün. Uyarı: Test noktasının veya göstergesinin kirli, nemli veya diğer hataları, canlı göstergenin hatın gücün tükendiğini yanlış bir şekilde göstermesine neden olabilir. at
İlgili ekipmanları çalıştırmadan önce, hattın elektriğe sahip olup olmadığını doğrulamak için ulusal standart tarafından onaylanmış diğer test yöntemlerini kullandığınızdan emin olun.